Casa indipendente in vendita

Sala Monferrato, Via Olearo
€ 15.000
6 locali 6 locali
200 Mq 200 Mq
2 bagni 2 bagni

Casa indipendente in vendita

Sala Monferrato, Via Olearo

Descrizione annuncio

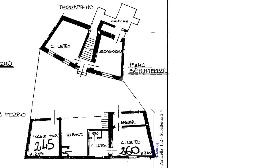
L’immobile si trova nel paese di Sala, nel cuore del Monferrato Casalese ed è disposto su più livelli, sfruttando la pendenza naturale della collina.

L’ingresso principale affaccia su un disimpegno che separa cucina/tinello dalla camera da letto con il bagno. Dalla camera è anche accessibile un balconcino che affaccia verso le colline. Completa il piano un ripostiglio.

Sempre dal disimpegno d’ingresso si raggiunge il piano inferiore tramite una scala. Questo piano è composto da una camera da letto e da un soggiorno. È anche presente una cantina con pozzo.

Da questo piano è accessibile il cortile privato ma soggetto a servitù di passaggio.

Sul cortile, di fronte all’abitazione, affaccia un rustico con locale di deposito e tettoia. È inoltre presente una dependance, composta da ingresso, due camere da letto e bagno.

Al piano ancora inferiore, in corrispondenza del rustico, sono presenti a completare la proprietà due cantine ed una autorimessa, accessibili direttamente da Via Asilo.

L’immobile è dotato di termoconvettori a metano in ogni stanza ed i serramenti sono in legno con il vetro singolo.

Mostra tutto

Nelle vicinanze

Ricariche auto elettriche Ricariche auto elettriche
e-bike charging point, via Roma, Sala Monferrato
180 m
Farmacia Farmacia
Farmacia
90 m
Serrafero Elisabetta
2,7 Km
Bar Bar
Chiuso Quando Piove
2,9 Km
Bar
3,0 Km
Ristoranti Ristoranti
Hosteria Treville
2,4 Km
Mostra tutto

Caratteristiche

Rif.:
61114720
Piano:
2 di 2 (Piano su più livelli)
Box:
2
Balconi:
1
Camere da letto:
4
Arredamento:
Assente
Mostra tutto
Prezzo Prezzo
€ 15.000
Rata mutuo Rata mutuo
€ 69 / mese
Spese annue Spese annue
€ 0
Proponi il tuo prezzoProponi il tuo prezzo

Classe Energetica

G
G
G
G
G
G
G
G
G
EP globale non rinnovabile:
243.11 kW h/m² anno
EP globale rinnovabile:
4.56 kW h/m² anno
EP invernale del fabbricato:
EP estiva del fabbricato:
Anno di costruzione:
1900
Riscaldamento:
Autonomo
Tipo impianto:
Ad aria
Tipo alimentazione:
Aria

Ti interessa visionare l'immobile?

Fissa un appuntamento  Fissa un appuntamento

Richiedi informazioni

* Questi campi sono obbligatori

Calcola il tuo mutuo

Semplice e senza impegno
Anticipo

( % )
Mutuo

( % )

pochi semplici passi

inserisci i tuoi dati
Questionario completato
Grazie per aver richiesto un appuntamento senza impegno con un nostro Consulente del Credito e Assicurativo.

Hai inserito correttamente tutti i dati necessari e a breve riceverai una e-mail con un link da convalidare per inviare i tuoi dati.
Affiliato
Studio Casale D.I.
Corso Manacorda, 63 15033 Casale Monferrato (AL)

Il nostro staff


  • Alberto Dionisotti
    Affiliato

  • Serena Biletta
    Coordinatrice

  • Santino Mammola
    Collaboratore

  • Simone Anselmo
    Collaboratore
Corso Manacorda, 63 15033 Casale Monferrato (AL)
Zona: Casale Monferrato e zone collinari
Mostra su mappa
Orari: LUN - VEN 09.00/12.30 - 14.30/18.30 SAB su appuntamento
Affiliato
Studio Casale D.I.
Corso Manacorda, 63 15033 Casale Monferrato (AL)

2025 Tecnocasa Franchising S.p.A. - P. IVA 08365160152 - Via Monte Bianco 60/A 20089 Rozzano (MI). Ogni agenzia ha un proprio titolare ed è autonoma. Privacy policy | Policy utilizzo | Cookie policy