Casa semindipendente in vendita

Occimiano, Via V. Emanuele
€ 70.000
7 locali 7 locali
231 Mq 231 Mq
4 bagni 4 bagni

Casa semindipendente in vendita

Occimiano, Via V. Emanuele

Descrizione annuncio

Il paese di Occimiano si trova lungo la statale che porta da Casale Monferrato a Alessandria, in cui abbiamo i principali servizi come le scuole primarie, la farmacia, poste, ristorante, bar e sede di una stazione di Carabinieri.

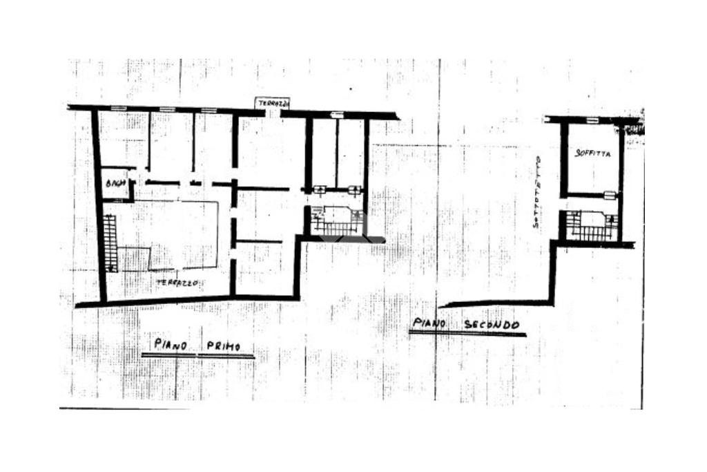
Il complesso immobiliare si trova lungo la via principale, vicina al Comune e alla piazza del mercato, ed è composta al piano terra da un negozio dotato di due vetrine con due porte d’ingresso indipendenti. Il locale commerciale è costituito da un grande vano principale dove a destra abbiamo un bagno per disabili e l’antibagno, mentre a sinistra un altro locale dotato di attacchi per l’acqua e sul retro un piccolo bagno cieco e un locale di servizio. Infine una scala interna permette il collegamento diretto tra il negozio e la parte abitativa.

Oltre al negozio, l’accesso alla residenza può avvenire anche dalla strada grazie ad una porta ed al passo carraio che conduce al cortile interno. Un tempo utilizzato come studio medico, dall’ingresso pedonale troviamo dopo un breve atrio un piccolo locale finestrato e di fronte un’altra stanza di maggiori dimensioni, questa con collegamento diretto al cortile di circa 24 mq. Su questo si affacciano alcuni locali di servizio, la sede della centrale termica e due box di circa 15 mq ciascuno.

Il primo piano può essere raggiunto anche tramite una scala esterna dove un ballatoio collega diversi ambienti abitativi, oltre che ad una piccola terrazza interna.

Interamente da ristrutturare, in questo piano abbiamo due grandi camere da letto matrimoniali con affaccio sul cortile, dove quella più centrale mette in comunicazione la scala interna che proviene dal negozio e l’ampio salotto con balcone. Di seguito abbiamo una cucina e una sala da pranzo entrambe dotate di porta finestra sul ballatoio. Proseguendo c’è una camera da letto matrimoniale con affaccio sulla strada statale e un ampio bagno finestrato dotato di vasca.

Sempre sul primo piano sul lato opposto troviamo un altro bagno finestrato con vasca e un locale di servizio dove è presente un soffitto antico in legno a cassettoni. All’ultimo piano troviamo una soffitta sempre abbellita da un soffitto in legno a cassettoni di più recente fattura e un ampio sottotetto.

Gli infissi nell’appartamento sono in legno a vetro singolo, mentre nel negozio sono in alluminio. L’impianto di riscaldamento è presente solo nel locale commerciale tramite pompa di calore.

Il tetto risulta essere in ordine e in parte coibentato.

Mostra tutto

Nelle vicinanze

Scuole Scuole
Scuole
170 m
Scuola Primaria
380 m
Supermercati Supermercati
Supermercati
40 m
Negozi Negozi
Negozi
3,0 Km
Ristoranti Ristoranti
Ristorante Del Moro
60 m
Mostra tutto

Caratteristiche

Rif.:
61133334
Piano:
3 di 3 (Piano su più livelli)
Box:
1
Balconi:
1
Terrazzi:
1
Camere da letto:
3
Mostra tutto
Prezzo Prezzo
€ 70.000
Rata mutuo Rata mutuo
€ 330 / mese
Spese annue Spese annue
€ 0
Proponi il tuo prezzoProponi il tuo prezzo

Classe Energetica

G
G
G
G
G
G
G
G
G
EP globale non rinnovabile:
337.58 kW h/m² anno
EP globale rinnovabile:
10.02 kW h/m² anno
EP invernale del fabbricato:
EP estiva del fabbricato:
Anno di costruzione:
1900
Riscaldamento:
Autonomo
Tipo impianto:
Ad aria
Tipo alimentazione:
Aria

Ti interessa visionare l'immobile?

Fissa un appuntamento  Fissa un appuntamento

Richiedi informazioni

Clicca su Leggi per aprire l'informativa
* Questi campi sono obbligatori

Calcola il tuo mutuo

Semplice e senza impegno
Anticipo

( % )
Mutuo

( % )

pochi semplici passi

inserisci i tuoi dati
Questionario completato
Grazie per aver richiesto un appuntamento senza impegno con un nostro Consulente del Credito e Assicurativo.

Hai inserito correttamente tutti i dati necessari e a breve riceverai una e-mail con un link da convalidare per inviare i tuoi dati.
Affiliato
Studio Casale D.I.
Corso Manacorda, 63 15033 Casale Monferrato (AL)

Il nostro staff


  • Alberto Dionisotti
    Affiliato

  • Serena Biletta
    Coordinatrice

  • Santino Mammola
    Collaboratore

  • Simone Anselmo
    Collaboratore
Corso Manacorda, 63 15033 Casale Monferrato (AL)
Zona: Casale Monferrato e zone collinari
Mostra su mappa
Orari: LUN - VEN 09.00/12.30 - 14.30/18.30 SAB su appuntamento
Affiliato
Studio Casale D.I.
Corso Manacorda, 63 15033 Casale Monferrato (AL)

2026 Tecnocasa Franchising S.p.A. - P. IVA 08365160152 - Via Monte Bianco 60/A 20089 Rozzano (MI). Ogni agenzia ha un proprio titolare ed è autonoma. Privacy policy | Policy utilizzo | Cookie policy