Casa indipendente in vendita

Motta De' Conti, Via Torino - Mantie
€ 195.000
10 locali 10 locali
200 Mq 200 Mq
5 bagni 5 bagni

Casa indipendente in vendita

Motta De' Conti, Via Torino - Mantie

Descrizione annuncio

La casa indipendente è immersa nella campagna di Mantie, frazione di Motta de' Conti, a circa 20 minuti di macchina da Mortara, Casale Monferrato e Vercelli.

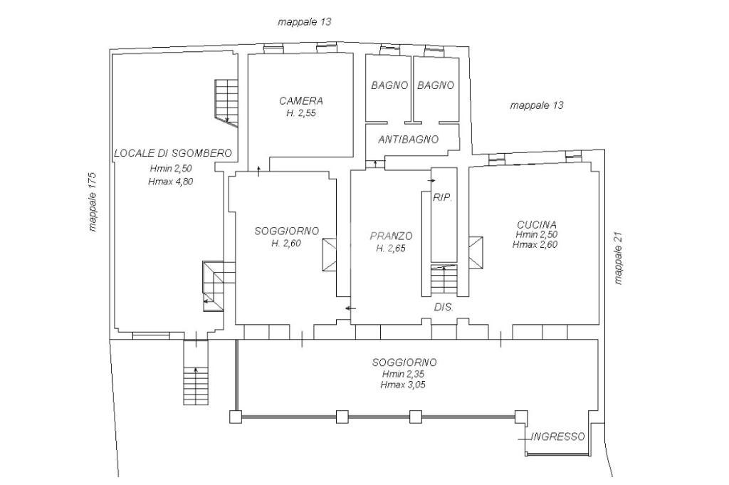
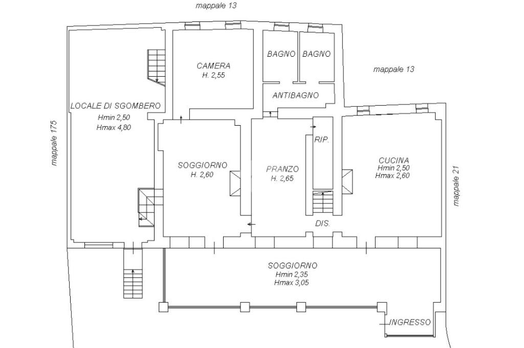
La proprietà dispone di cortile privato di circa 900mq, accessibile tramite il cancello automatico. La casa è disposta su due piani. Subito all'ingresso troviamo un salone di oltre 50mq con ampie finestre, che donano luce all'ambiente.

La cucina è abitabile e dispone di camino a legna. Due salotti e uno studio completano la zona giorno del piano terra. Sono inoltre presenti due bagni, entrambi con doccia, collegati da un comodo antibagno comune. Sempre al piano terra, accessibile anche dall'esterno si trova una grande taverna, ideale per feste con gli amici.

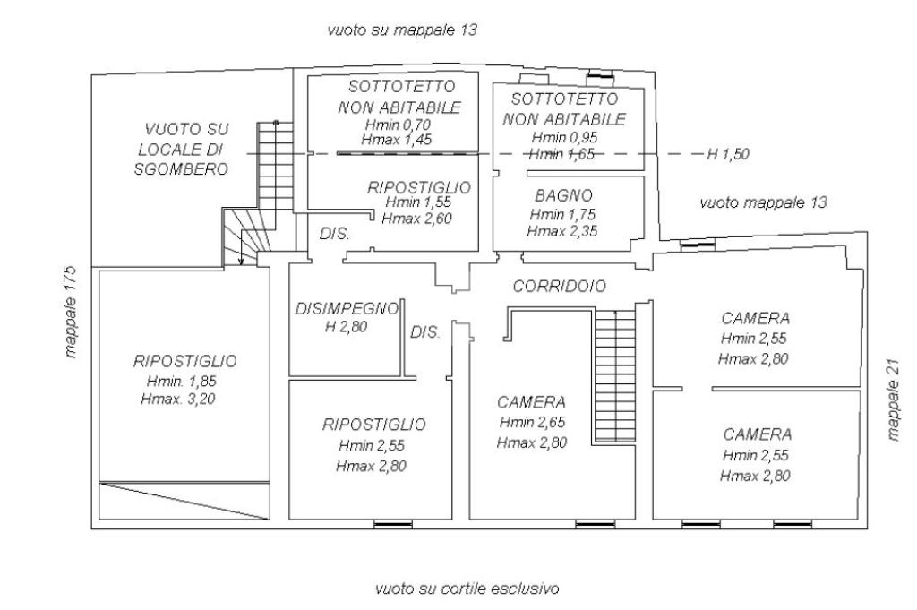
Al piano superiore si trova invece la zona notte, composta da quattro camere da letto matrimoniali e da una cameretta con cabina armadio. Completano il piano due bagni con vasca.

Esternamente sono presenti dei rustici, uno dei quali utilizzato come taverna e dotato di forno a legna e forno per la pizza. Nell'altro rustico è invece presente una cantina e un locale magazzino con bagno con doccia.

La proprietà si presta anche a essere utilizzata come soluzione bifamiliare, essendo già presenti due scale e due accessi indipendenti alla parte abitativa.

Il riscaldamento è autonomo a metano ed i serramenti sono in pvc con il doppio vetro. Le condizioni del tetto sono buone.

Mostra tutto

Nelle vicinanze

Scuole Scuole
Scuola Primaria
2,9 Km
Farmacia Farmacia
Farmacia
2,1 Km
Farmacia Coppo Dottor Piera
2,9 Km
Negozi Negozi
Negozi
2,1 Km
Ristoranti Ristoranti
Taverna del Duca
840 m
Bar Osteria San Martino
2,0 Km
Ristorante Ponte Sesia
2,3 Km
Mostra tutto

Caratteristiche

Rif.:
61073304
Piano:
2 di 2 (Piano su più livelli)
Camere da letto:
5
Arredamento:
Assente
Condizionamento:
Assente
Ascensore:
No
Mostra tutto
Prezzo Prezzo
€ 195.000
Rata mutuo Rata mutuo
€ 919 / mese
Spese annue Spese annue
€ 0
Proponi il tuo prezzoProponi il tuo prezzo

Classe Energetica

D
D
D
D
D
D
D
D
D
EP globale non rinnovabile:
182.46 kW h/m² anno
EP globale rinnovabile:
0.00 kW h/m² anno
EP invernale del fabbricato:
EP estiva del fabbricato:
Anno di costruzione:
1950
Riscaldamento:
Autonomo
Tipo impianto:
A radiatori
Tipo alimentazione:
Metano

Ti interessa visionare l'immobile?

Fissa un appuntamento  Fissa un appuntamento

Richiedi informazioni

Clicca su Leggi per aprire l'informativa
* Questi campi sono obbligatori

Calcola il tuo mutuo

Semplice e senza impegno
Anticipo

( % )
Mutuo

( % )

pochi semplici passi

inserisci i tuoi dati
Questionario completato
Grazie per aver richiesto un appuntamento senza impegno con un nostro Consulente del Credito e Assicurativo.

Hai inserito correttamente tutti i dati necessari e a breve riceverai una e-mail con un link da convalidare per inviare i tuoi dati.
Affiliato
Studio Casale D.I.
Corso Manacorda, 63 15033 Casale Monferrato (AL)

Il nostro staff


  • Alberto Dionisotti
    Affiliato

  • Serena Biletta
    Coordinatrice

  • Santino Mammola
    Collaboratore

  • Simone Anselmo
    Collaboratore
Corso Manacorda, 63 15033 Casale Monferrato (AL)
Zona: Casale Monferrato e zone collinari
Mostra su mappa
Orari: LUN - VEN 09.00/12.30 - 14.30/18.30 SAB su appuntamento
Affiliato
Studio Casale D.I.
Corso Manacorda, 63 15033 Casale Monferrato (AL)

2026 Tecnocasa Franchising S.p.A. - P. IVA 08365160152 - Via Monte Bianco 60/A 20089 Rozzano (MI). Ogni agenzia ha un proprio titolare ed è autonoma. Privacy policy | Policy utilizzo | Cookie policy