Rustico in vendita

Lu, Via Marconi
€ 45.000
6 locali 6 locali
250 Mq 250 Mq
1 bagno 1 bagno

Rustico in vendita

Lu, Via Marconi

Descrizione annuncio

L’immobile si trova a Lu Monferrato, paese situato sulle colline del Monferrato, a pochi chilometri da Casale Monferrato e da Alessandria.

Il paese dispone dei principali servizi come il tabaccaio, la farmacia, il bar e la posta. Sono inoltre presenti l’asilo nido e la scuola primaria.

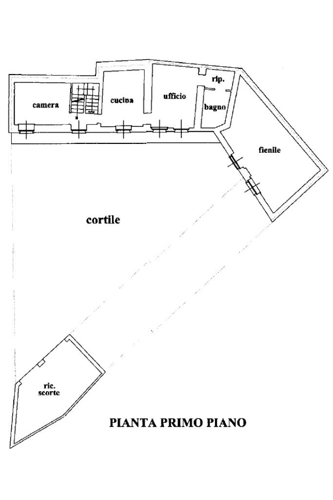
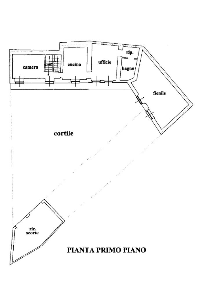
La casa si sviluppa su tre livelli e gode di un cortile privato ad uso esclusivo di circa 120 mq.

Il primo piano è composto da cucina, sala da pranzo e ampio soggiorno. In questo piano è inoltre presente il balcone che affaccia verso il cortile. Vanno ad ultimare il piano il ripostiglio ed il bagno con vasca.

Salendo al secondo piano troviamo due camere da letto matrimoniali.

Al piano terra è ubicata la parte accatastata come D/10, ad uso agricolo dove sono presenti tettoie e locali di sgombero, un tempo utilizzati come deposito e ricovero attrezzi.

Completano la proprietà una parte rustica ed un box auto privato.

Il riscaldamento è autonomo a gasolio ed i serramenti hanno i vetri singoli. Il tetto è in buono stato mentre gli impianti sono da rivedere.

Mostra tutto

Nelle vicinanze

Ricariche auto elettriche Ricariche auto elettriche
Centro Revisioni F. & G.
450 m
Farmacia Farmacia
Farmacia
2,3 Km
Supermercati Supermercati
Supermarket
410 m
Supermercati
2,3 Km
Ristoranti Ristoranti
Il Ristoro
80 m
Orazio
450 m
La Fontana
1,9 Km
Risto Pub Vineria Stefania Porrati
2,3 Km
Mostra tutto

Caratteristiche

Rif.:
61169657
Piano:
2 di 2 (Piano su più livelli)
Box:
1
Balconi:
1
Camere da letto:
3
Arredamento:
Assente
Mostra tutto
Prezzo Prezzo
€ 45.000
Rata mutuo Rata mutuo
€ 214 / mese
Spese annue Spese annue
€ 0
Proponi il tuo prezzoProponi il tuo prezzo

Classe Energetica

F
F
F
F
F
F
F
F
F
EP globale non rinnovabile:
238.95 kW h/m² anno
EP globale rinnovabile:
82.12 kW h/m² anno
EP invernale del fabbricato:
EP estiva del fabbricato:
Anno di costruzione:
1900
Riscaldamento:
Autonomo
Tipo impianto:
A radiatori
Tipo alimentazione:
Metano

Ti interessa visionare l'immobile?

Fissa un appuntamento  Fissa un appuntamento

Richiedi informazioni

Clicca su Leggi per aprire l'informativa
* Questi campi sono obbligatori

Calcola il tuo mutuo

Semplice e senza impegno
Anticipo

( % )
Mutuo

( % )

pochi semplici passi

inserisci i tuoi dati
Questionario completato
Grazie per aver richiesto un appuntamento senza impegno con un nostro Consulente del Credito e Assicurativo.

Hai inserito correttamente tutti i dati necessari e a breve riceverai una e-mail con un link da convalidare per inviare i tuoi dati.
Affiliato
Studio Casale D.I.
Corso Manacorda, 63 15033 Casale Monferrato (AL)

Il nostro staff


  • Alberto Dionisotti
    Affiliato

  • Serena Biletta
    Coordinatrice

  • Santino Mammola
    Collaboratore

  • Simone Anselmo
    Collaboratore
Corso Manacorda, 63 15033 Casale Monferrato (AL)
Zona: Casale Monferrato e zone collinari
Mostra su mappa
Orari: LUN - VEN 09.00/12.30 - 14.30/18.30 SAB su appuntamento
Affiliato
Studio Casale D.I.
Corso Manacorda, 63 15033 Casale Monferrato (AL)

2026 Tecnocasa Franchising S.p.A. - P. IVA 08365160152 - Via Monte Bianco 60/A 20089 Rozzano (MI). Ogni agenzia ha un proprio titolare ed è autonoma. Privacy policy | Policy utilizzo | Cookie policy